Wohnung zum Kauf
Adresse
Auf Google Maps öffnen66386, St. Ingbert
Deutschland
- Gaszentral
- Einbauküche
- Unterkellert
Objekteckdaten
Aktualisiert am April 22, 2026 am 11:40 a.m.-
Immobilien-ID HZ35892
-
Wohnfläche ca. 72,67 m²
-
Zimmer 2.5
-
Etagenzahl 2
-
Nutzfläche ca. 85 m²
-
Schlafzimmer 1
-
Badezimmer 1
-
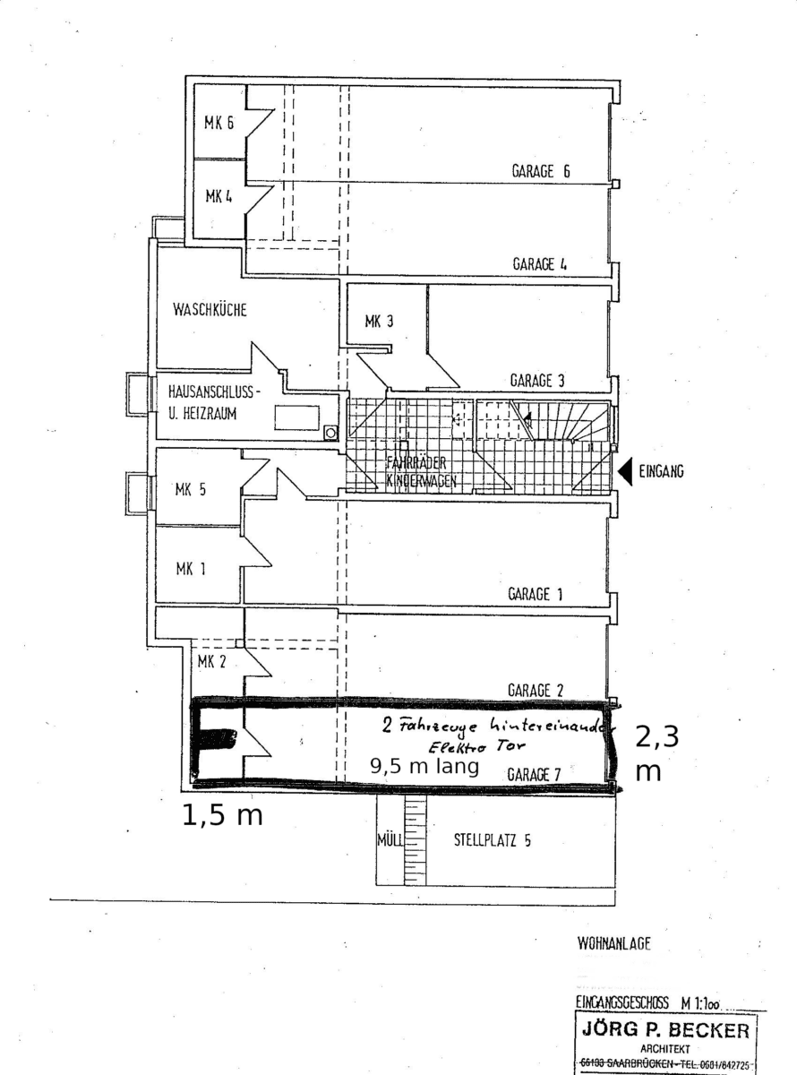
Garagen 2
-
Hausgeld 265 €
-
Mieteinnahmen pro Monat 650 €
Beschreibung
Gepflegte Eigentumswohnung zum Kauf in Rentrisch.
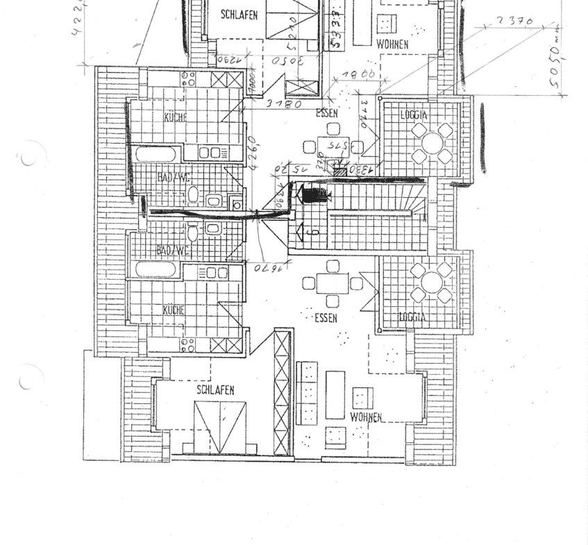
Es ist eine Dachgeschosswohnung im zweiten Obergeschoss mit 72,67m² bereinigt gerechnet. Bodenfläche ist wesentlich grösser.
4,4 Meter hoch unterm Giebel. Dort eine Eine Ebene errichten ist möglich. Grundriss ist bei den Bildern.
Auch eine Abtrennung des Wohnzimmers mit Tür ist machbar.
St. Ingbert Bahnhof und Rentrisch Bahnhof ist gut mit dem Fahrrad zu erreichen. 5-10min.
Saarbrücken Fahrrad 20-30min
Kinderspielplatz 30m im Wald. Waldgebiet kann für Spaziergäng und Sportliche Aktivitäten Genutzt werden.
Brennwert Gasheizung ist 2021 erneuert worden.
Dachgauben sind 2025 neu eingedeckt worden.
Zur Wohnung gehört noch eine Garage ca. 10m lang +Abstellraum
Es fällt keine Maklerprovision an, da Privatverkauf.
siehe Beschreibung
Wohngebiet
-
Fußweg zu Öffentl. Verkehrsmitteln: 3min
-
Fahrzeit zum nächsten Hauptbahnhof: 5min
-
Fahrzeit zur nächsten BAB: 3min
-
Fahrzeit zum nächsten Flughafen: 10
Energieklasse
- Objektzustand:Gepflegt
- Baujahr:1994
- Letzte Modernisierung/ Sanierung:2023
- Qualität der Ausstattung:Einfach
- Heizungsart:Gaszentral
- Endenergiebedarf Strom:+
- Endenergiebedarf Wärme:-
- Energetische Klasse:B
- Endenergieverbrauch:500€/Jahr kWh/m²a
- Endenergieverbrauch Strom :65€/Monat
- Endenergieverbrauch Wärme:-
- Wesentliche Energieträger:Gas
- Baujahr laut Energieausweis:-
- A+
- A
- | Energieklasse BB
- C
- D
- E
- F
- G
- H
Kontaktinformationen
Ähnliche Inserate
*Provisionsfrei* Traumhafte 2- bis 3-Zimmerwohnung im Grünen
30459 Hannover
Niedersachsen
Deutschland
Im Auftrag – Vermietete Eigentumswohnung als Kapitalanlage
93333 Neustadt-Bad Gögging
Bayern
Deutschland
Diese stilvolle Maisonette-Dachgeschosswohnung mit Spitzboden und herrlichem Seeblick vereint gemütliches Wohnen mit modernem Komfort auf 80 m2 und traumhafter Lage am Ammersee.
86919 Utting am Ammersee
Bayern
Deutschland
















