Obertal 16
77770, Durbach
Deutschland
- €1.650.000,00
Einzigartiges Mehrfamilienhaus/Bauernhof mit 3,7 ha Fläche und Brennerei in unverbaubarer Traumlage
Adresse
Auf Google Maps öffnenObertal 16
77770, Durbach
Deutschland
- Gäste-WC
- Fußbodenheizung
- Teilweise unterkellert
- Als Ferienhaus geeignet
Objekteckdaten
Aktualisiert am April 13, 2026 am 10:00 p.m.-
Immobilien-ID HZ27870
-
Wohnfläche ca. 350 m²
-
Zimmer 10
-
Etagenzahl 3
-
Grundstücksfläche 37363 m²
-
Nutzfläche ca. 96 m²
-
Schlafzimmer 3
-
Badezimmer 3
-
Garagen 3
Beschreibung
Entdecken Sie dieses außergewöhnliche Anwesen, das nicht nur durch seine 37.363 Quadratmeter große land- und forstwirtschaftliche Fläche besticht, sondern auch durch seine ruhige Alleinlage und die vielfältigen Nutzungsmöglichkeiten. Dieses Dreifamilienhaus bietet Ihnen und Ihrer Familie ein komfortables Zuhause sowie die Möglichkeit, die Natur in vollen Zügen zu genießen. Die großflächige Wiese rund um das Haus bietet Ihnen genügend Platz für Pferdehaltung, Schafe oder sonstige Tiere. Was auch immer Sie sich vorstellen – dem sind keine Grenzen gesetzt! Diese einzigartige Immobilie liegt im Durbacher Außenbereich in unverbaubarer Lage, umgeben von Wiese und Wald. Völlige Entspannung liefert Ihnen außerdem das Plätschern des Bachlaufs, welcher direkt am Haus vorbeiführt. Egal ob als Kapitalanlage oder zur Eigennutzung, die Immobilie bietet Ihnen unzählige Möglichkeiten. Die Hauptwohnung mit ihren 210 qm ist das Herzstück der Immobilie und wurde mit sehr viel Liebe 2019 aufwändig und nur mit hochwertigen Materialien neu gebaut. Die Hauptwohnung verfügt über einen separaten Hauseingang. Die beiden anderen Wohnungen (87 qm und 60 qm) können rentabel vermietet oder flexibel als Ferienwohnungen genutzt werden. Dieses Anwesen bietet nicht nur ein komfortables Zuhause, sondern auch ein enormes Potenzial als Investment und individuelle Gestaltungsmöglichkeiten. Ob als privates Refugium oder als interessante Kapitalanlage – hier eröffnen sich zahlreiche Perspektiven.
Highlights des Anwesens:
Ausstattung: Allgemein:
-zwei Garagen + Carport + Stellplätze
-2019 wurde das gesamte Hausdach neu gedeckt (Longlife Dachsteine mit Selbstreinigungseffekt)
-rund ums Haus genügend Starkstromanschlüsse vorhanden (z.B. für Ladestationen E-Auto oder Whirlpool)
-separater Waschraum mit Sauna und Kaltdusche
-einbruchhemmende Fenster im gesamten Erdgeschoss (RC2)
-Home Office geeignet: gute und stabile Internetverbindung
-SAT Anlage mit Verbindungen zu allen Wohnungen
Hauptwohnung:
-210 qm, Neubau
- Baujahr 2019
-Fußbodenheizung
-effiziente Luft-Wärme-Pumpe von Stiebel Eltron (Baujahr 2018)
-Kunststofffenster Iso Plus dreifachverglast
-Wellnessbereich mit Saunaanschluss, Regendusche, Badewanne und WC
-Balkon und Loggia Südseite, welche zum Entspannen und Genießen der Umgebung einladen
-Rollläden mit Alupanzer (teils elektrisch)
-LAN Anschlüsse in vielen Räumen
-Designer Flachstahlwangentreppe (Trittstufen Buche massiv und Handlauf aus Edelstahl)
-hochwertige Fliesen und Vinyl Bodenbeläge
-exklusive italienische Design-Badausstattung
-Masterbad mit Regendusche, WC, Handtuchheizkörper und Doppelwaschtisch
-hochwertige Elektrik und Baumaterialien
-hochwertige LED Einbaustrahler (Küche, Bad, Treppenhaus)
-Luxus Designer Einbauküche mit Kochinsel und Granitarbeitsplatte der Marke LEICHT Neupreis: 65.000 EUR -hochwertige Markengeräte: Bora Kochfeld, Liebherr Side-by-Side Kühl-Gefrierkombination, Miele Einbau-Backofen, Miele XXL-Geschirrspüler
-Gäste WC
-Vorratsraum direkt neben der Küche
-Wohnzimmer mit Zugang zur überdachten Loggia und neues Designersofa in den Farben Mammut Anthrazit/Ranch Schwarz bestehend aus Canape mit Schublade, 3 Sitzer mit Querschläfer und verstellbaren Kopfstützen
Wohnung 2:
-60 qm, BJ 1974
- Renovierung 2018
-Einbauküche
-Wodtke Kaminofen in der Küche
-Balkon mit Glasüberdachung Westseite
-Anschlüsse für Elektro-Nachtspeicheröfen sind vorhanden
-Warmwasserboiler
Wohnung 3:
-87 qm, BJ 1974
-Einbauküche
-Wodtke Kaminofen im Wohnzimmer
-Rizzoli Holzherd mit Backofen in der Küche
-Balkon mit Glasüberdachung Westseite
-Anschlüsse für Elektro-Nachtspeicheröfen vorhanden
-Warmwasserboiler
Durbach ist ein malerischer Ort in der Ortenau und liegt am Westrand des Schwarzwaldes.
Hier sind einige interessante Details zur Lage von Durbach:
• Entfernung zu Offenburg: Durbach befindet sich etwa sieben Kilometer nördlich von der Kreisstadt Offenburg.
• Geografische Merkmale: Die Gemeinde ist eingebettet in Rebhänge und erstreckt sich über insgesamt 42 Seitentäler. Dies verleiht der Umgebung eine wunderschöne, abwechslungsreiche Landschaft.
• Höhenlage: Die Höhenlage variiert zwischen 200 und 873 Metern über dem Meeresspiegel.
• Einwohnerzahl: Durbach hat etwa 4.000 Einwohner, was es zu einer charmanten und lebendigen Gemeinde macht.
• Weinregion: Durbach ist bekannt als ein traditionsreicher Weinort an der Badischen Weinstraße, was die Region besonders attraktiv für Weinliebhaber macht.
• Im Ort gibt es zwei Bäckereien, eine Metzgerei, Lebensmitteleinzelhandel, Friseure, Elektrohandel, Ärzte und Apotheke, Schule und Kindergarten.
Die Kombination aus der idyllischen Lage, der Nähe zu Offenburg und der Weinbau-Tradition macht Durbach zu einem wunderbaren Ort zum Leben und Besuchen.
Durbach ist aufgrund seiner schönen Lage ein bekanntes und beliebtes Urlaubsziel im Schwarzwald für Wanderer, Mountainbiker, Weinliebhaber und Genießer.
Mit dieser einzigartigen Immobilie haben Sie die Möglichkeit alle drei Wohnungen selbst zu nutzen, eine oder mehrere Wohnungen zu vermieten oder als Ferienwohnungen zu betreiben. Die landwirtschaftliche Fläche bietet Ihnen außerdem zahlreiche Möglichkeiten. Aktuell sind auf den Feldern Apfel-, Kirsch-, Haferpflaumen- und Birnenbäume gepflanzt. Es ist aber noch genügend Ausbaupotential vorhanden - ganz nach Ihren Wünschen!
Die arrondierte Fläche am Haus beträgt 16.288 qm. Weitere 16.065 qm Fläche befinden sich im Nachbarort Ebersweier und 5.010 qm sind in Windschläg/Offenburg. Oberhalb des Wohnhauses befindet sich Ihr rund 3.000 qm großer Mischwald - hier ist mehr als genügend Holz für den privaten Gebrauch vorhanden.
Im Ökonomiegebäude befindet sich eine 31 qm große Brennerei mit hochwertigem und gepflegtem Brennkessel (146 Liter, Rührwerk und Holzbefeuerung). Der Käufer dieser Immobilie hat die Möglichkeit das Brennrecht auf sich zu beantragen. Der Kessel und weitere Geräte wie z.B. Traktor, Mähmulcher, Traktor-Anhänger, Balkenmäher, Motorsäge, Brennerei-Ausstattung, Maischepumpe, elektrischer Holzspalter, usw. können auf Verhandlungsbasis mit übernommen werden.
Hierbei handelt es sich um einen Verkauf von Privat, es fällt somit keine Provision an!
Sollten Sie einen Besichtigungstermin oder weitere Informationen wünschen, kontaktieren Sie uns bitte unter: Hausverkauf-Durbach@web.de
Voraussetzung für einen Besichtigungstermin ist das Vorliegen eines Kapitalnachweises.
Bitte keine Makleranfragen
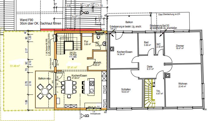
Grundrisse und Dokumente
-
Fußweg zu Öffentl. Verkehrsmitteln: Bushaltestelle 5 Minuten
-
Fahrzeit zum nächsten Hauptbahnhof: Hauptbahnhof Offenburg 15 Minuten
-
Fahrzeit zur nächsten BAB: A5 15 Minuten
-
Fahrzeit zum nächsten Flughafen: Strasbourg 30 Minuten, Karlsruhe/Baden-Baden 40 Minuten
Energieklasse
- Objektzustand:Neuwertig
- Baujahr:2019
- Letzte Modernisierung/ Sanierung:2019
- Qualität der Ausstattung:Gehoben
- Heizungsart:Fußbodenheizung
- Energieausweistyp:Verbrauchsausweis
- Endenergiebedarf:31,7 kWh/m²a
- Energetische Klasse:A
- Endenergieverbrauch:31,7 kWh/m²a
- Wesentliche Energieträger:Elektro
- Baujahr laut Energieausweis:2018
- Energiausweis gültig bis:2030-02-03
- A+
- | Energieklasse AA
- B
- C
- D
- E
- F
- G
- H
Kontaktinformationen
Ähnliche Inserate
Historisches Schifferhaus mit Wasserblick in Zerpenschleuse
16348 Wandlitz
Brandenburg
Deutschland
Attraktive Rendite – 6 Familienhaus – Aufteilung nach WEG
55743 Idar-Oberstein
Rheinland-Pfalz
Deutschland





















